物件画像 (画像枚数:28枚)
-
『現地外観写真』
-
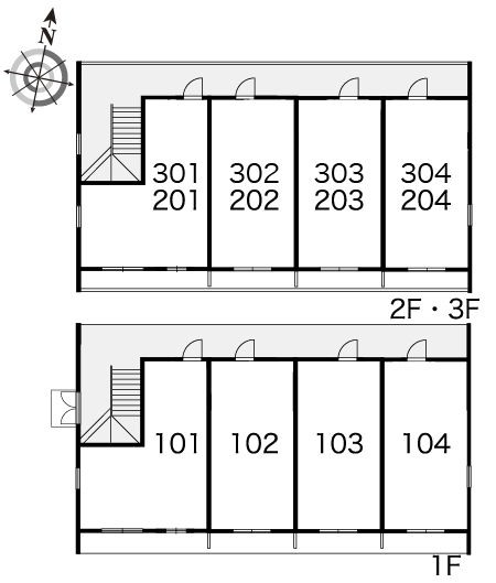
『間取り図』
-
『その他』
-
『その他』
-
『居間・リビング』カーテンやテーブル、テレビも備え付けです
-
『居間・リビング』家具家電の付いていないお部屋もあります
-
『キッチン』1口の電気コンロまたはIHコンロとなります
-
『浴室』洗面台とユニット式のお風呂です
-
『その他』お風呂、トイレは完全別です
-
『その他』
-
『その他』宅外駐車場あり
-
『現地外観写真』
-
『その他』
-
『その他』
-
『その他』階段上からのアングルです
-
『その他』
-
『その他』インフォメーションボード
-
『その他』集合ポストあり
-
『その他』ゴミ捨て場は宅外にあります
-
『その他』3階からのアングルです
-
『その他内観』居間に大きい収納スペースがあります
-
『寝室』フローリングのお部屋です
-
『その他』居間に冷蔵庫置き場があります
-
『その他内観』
-
『その他』洗濯機置き場
-
『その他』洗濯物を外干しできます
-
『玄関』玄関からのアングルです
-
『その他環境写真』24時間営業のスーパーがあります
賃貸マンション
レオパレスクレール 204 1K
- 賃料
- 4.1 万円
- 管理費等
- 5,000円
- 敷金・保証金
- -
- 礼金
- 1ヶ月
- 交通
- 長野電鉄長野線信州中野駅から徒歩8分
長野電鉄長野線中野松川駅から徒歩23分
- 所在地
- 長野県中野市大字西条
- 築年月
- 1997年9月(築28年)
- 専有面積
- 26.49㎡
- 間取り
- 1K
- おすすめポイント
- お問合せ
- 株式会社 Bridge Life 050-2018-6403
物件詳細情報
| 物件番号 |
138621671 |
| 交通 |
長野電鉄長野線信州中野駅から徒歩8分 長野電鉄長野線中野松川駅から徒歩23分 |
| 所在地 |
長野県中野市大字西条 |
| 物件種目 |
賃貸マンション |
| 賃料 |
4.1万円 |
管理費等 |
5,000円 |
| 敷金・保証金 |
- |
礼金 |
1ヶ月 |
| 敷引 |
- |
保証金償却 |
- |
| その他一時金 |
鍵交換代:16500円,更新料:16500円 |
保険等 |
要 0年 1円 |
| フリーレント |
1ヶ月 |
| 間取り(内訳) |
1K |
専有面積 |
26.49㎡ |
| 築年月 |
1997年9月(築28年) |
階建/階 |
地上3階建 / 2階 |
| 総戸数 |
12戸 |
建物構造 |
鉄骨造 |
| 部屋向き |
不明 |
駐車場 |
有り 0.385万円 |
| 建物名 |
レオパレスクレール |
| 備考 |
環境維持費:1ヶ月550円(税込)、鍵交換費:ご契約時16500円(税込)、退去時清掃費:38500円(税込)、更新手数料:16500円(税込)、保証委託料:必要、引落手数料:524円(税込)、個人契約限定 |
| 契約期間 |
2年 |
現況 |
空き |
| 保証人 |
|
| 条件等 |
- |
入居可能日 |
即時 |
| 情報公開日 |
2026年04月17日 |
次回更新予定日 |
2026年5月1日 |
設備・条件
- 角部屋
- 電気コンロ
- フローリング
- ベランダ・バルコニー
- バス・トイレ別
- 洗浄便座
- 屋内洗濯機置き場
- 給湯器
- エアコン
- スマートフォンでもこの物件をご覧になれます。

- ※契約済みの場合や、条件変更が反映されていない場合などがあります。最新の情報に関しましてはお問い合わせの上、ご確認下さい。
- ※地図、及び、ストリートビューは物件周辺の住所を表すものであり、実際の物件所在地とは異なる場合があります。
取扱い不動産会社
【株式会社 Bridge Life】
▶ 会社情報の詳細を見る
| 所在地 |
東京都豊島区池袋2-36-1 INFINITY IKEBUKURO 4F |
| 営業時間 |
10:00~18:00(日本時間) |
定休日 |
水曜、祝日 |
| 取引態様 |
仲介 |
免許番号 |
国土交通大臣(1)第10555号 |
| 所属団体名 |
公益社団法人 全国宅地建物取引業連合会 |
公取協名 |
|
| 関連リンク |
|
電話:050-2018-6403
-
※つながらない方、不動産会社の方はこちら。
-
※お問合せの際は「Bridge Roomを見た」と言っていただくとスムーズです。
- 【株式会社 Bridge Life】
-
さまざまな物件を取り揃えております。物件比較、各種ご相談承ります。お気軽にお越しください。
-