賃貸マンション
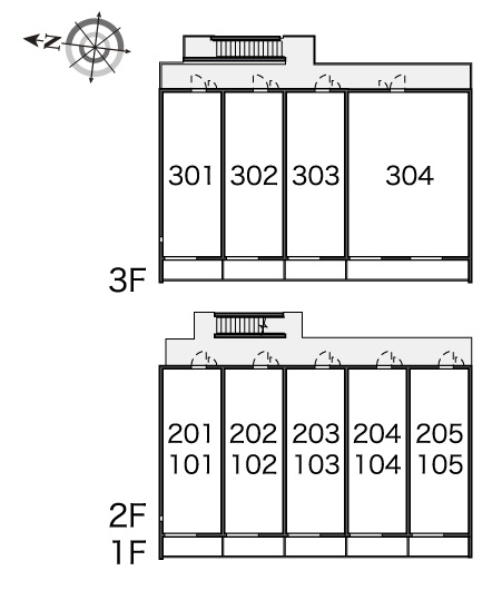
レオネクストフィオーレ 202 1R
| 物件番号 | 138609051 |
|---|---|
| 交通 | 東京メトロ千代田線綾瀬駅からバスで20分『辰沼団地入口』停歩6分 東京メトロ千代田線北綾瀬駅から徒歩25分 |
| 所在地 | 東京都足立区佐野1 |
| 物件種目 | 賃貸マンション |
| 賃料 | 8.9万円 | 管理費等 | 5,500円 |
|---|---|---|---|
| 敷金・保証金 | - | 礼金 | 1ヶ月 |
| 敷引 | - | 保証金償却 | - |
| その他一時金 | 鍵交換代:16500円,更新料:16500円 | 保険等 | 要 0年 1円 |
| フリーレント | - | ||
| 間取り(内訳) | 1R | 専有面積 | 27.80㎡ |
|---|---|---|---|
| 築年月 | 2013年10月(築12年) | 階建/階 | 地上3階建 / 2階 |
| 総戸数 | 14戸 | 建物構造 | 鉄骨造 |
| 部屋向き | 西 | 駐車場 | 有り 2.035万円 |
| 建物名 | レオネクストフィオーレ | ||
| 備考 | 環境維持費:1ヶ月550円(税込)、鍵交換費:ご契約時16500円(税込)、退去時清掃費:41800円(税込)、インターネット利用料:有料、更新手数料:16500円(税込)、保証委託料:必要、引落手数料:524円(税込) | ||
| 契約期間 | 2年 | 現況 | 使用中 |
|---|---|---|---|
| 保証人 | |||
| 条件等 | 学生歓迎 ,高齢歓迎 | 入居可能日 | 2026年05月下旬 |
| 情報公開日 | 2026年04月17日 | 次回更新予定日 | 2026年5月1日 |

東京都足立区佐野1周辺の地図
【株式会社 Bridge Life】 ▶ 会社情報の詳細を見る
電話:050-2018-6403
さまざまな物件を取り揃えております。物件比較、各種ご相談承ります。お気軽にお越しください。
Bridge Roomは物件情報の適正化に努めております。物件情報に誤りがある場合、こちらからご連絡ください。