賃貸アパート
レオネクストヴィラージュ碧水Ⅱ 205 1K
| 物件番号 | 138530864 |
|---|---|
| 交通 | 東武伊勢崎・大師線姫宮駅から徒歩7分 東武伊勢崎・大師線北春日部駅から徒歩18分 |
| 所在地 | 埼玉県南埼玉郡宮代町川端3 |
| 物件種目 | 賃貸アパート |
| 賃料 | 6.5万円 | 管理費等 | 7,000円 |
|---|---|---|---|
| 敷金・保証金 | - | 礼金 | 1ヶ月 |
| 敷引 | - | 保証金償却 | - |
| その他一時金 | 鍵交換代:16500円,更新料:16500円 | 保険等 | 要 0年 1円 |
| フリーレント | 1ヶ月 | ||
| 間取り(内訳) | 1K | 専有面積 | 25.89㎡ |
|---|---|---|---|
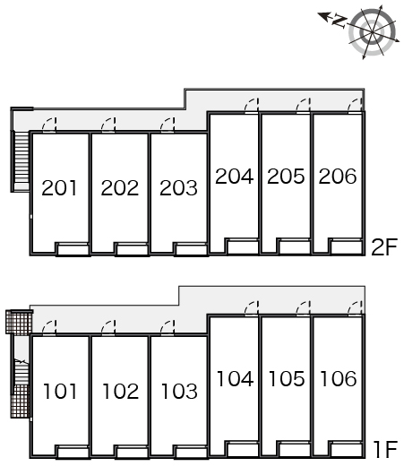
| 築年月 | 2016年4月(築10年) | 階建/階 | 地上2階建 / 2階 |
| 総戸数 | 12戸 | 建物構造 | 木造 |
| 部屋向き | 西 | 駐車場 | - |
| 建物名 | レオネクストヴィラージュ碧水Ⅱ | ||
| 備考 | 環境維持費:1ヶ月550円(税込)、鍵交換費:ご契約時16500円(税込)、退去時清掃費:41800円(税込)、インターネット利用料:有料、更新手数料:16500円(税込)、保証委託料:必要、引落手数料:524円(税込) | ||
| 契約期間 | 2年 | 現況 | 使用中 |
|---|---|---|---|
| 保証人 | |||
| 条件等 | 学生歓迎 ,高齢歓迎 | 入居可能日 | 2026年05月下旬 |
| 情報公開日 | 2026年04月15日 | 次回更新予定日 | 2026年4月29日 |

埼玉県南埼玉郡宮代町川端3周辺の地図
【株式会社 Bridge Life】 ▶ 会社情報の詳細を見る
電話:050-2018-6403
さまざまな物件を取り揃えております。物件比較、各種ご相談承ります。お気軽にお越しください。
Bridge Roomは物件情報の適正化に努めております。物件情報に誤りがある場合、こちらからご連絡ください。